合肥親親袋鼠早教中心
項目名稱 | 合肥親親袋鼠早教中心 | 行業屬性 | 醫療/教育/學校 |
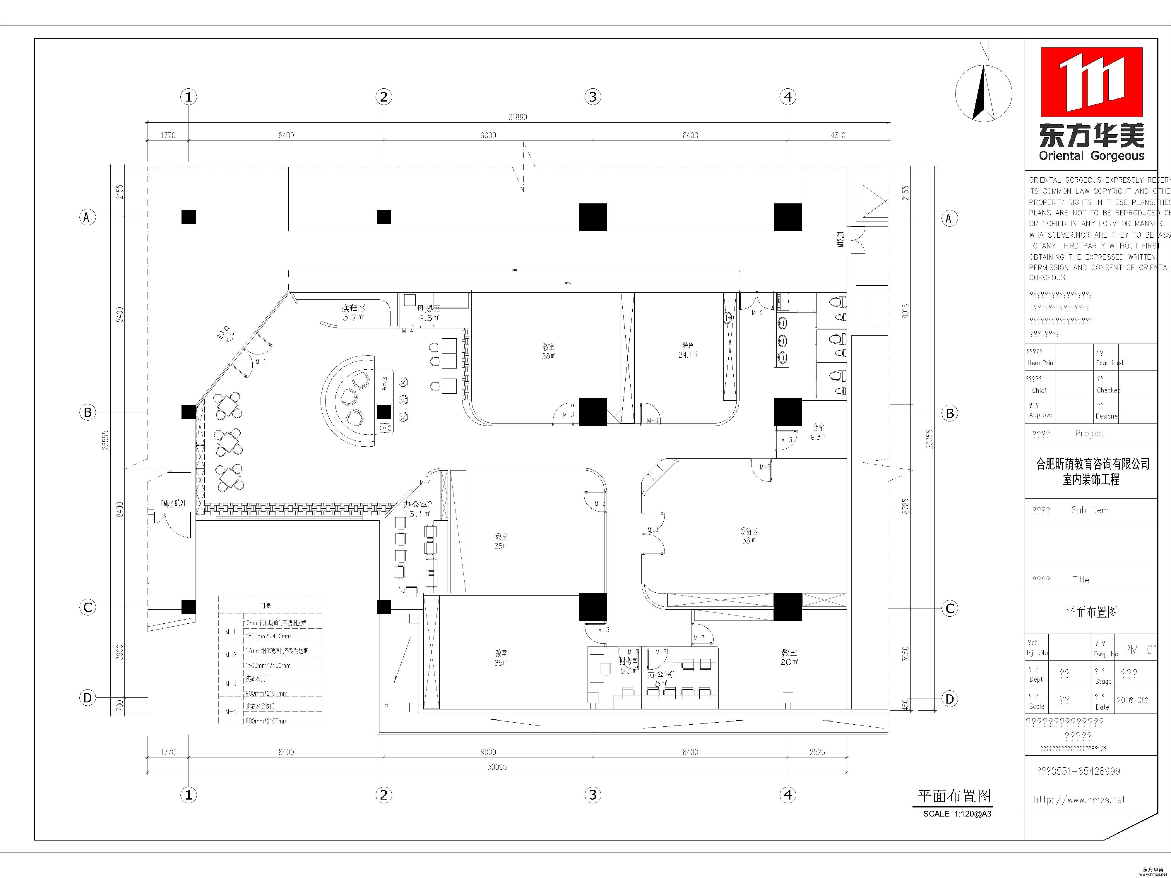
項目地址 | 合肥馬鞍山路綠地贏海大廈C座 | 項目造價 | 26萬 |
主關鍵詞 |

▄原建筑結構分析: 合理規劃空間,色彩搭配簡潔溫暖

▄設計需求: 親子教育,兒童早教,多彩的兒童元素,柔和現代風格,為兒童和家長提供一個舒適愉悅的場所。
▄設計風格定位: 早教中心裝修設計如何,會影響到家長對于早教中心的選擇。家長希望早教中心的裝修設計能夠符合兒童的成長、發育要求,能夠促進兒童智力的發育,讓兒童能夠在一個良好的環境下生活。因而,早教中心裝修設計需要從兒童的角度出發,一切以可愛為主。