朝陽新天地餐飲裝修工程
| 項目名稱 | 朝陽新天地餐飲裝修工程 | 行業屬性 | 酒店/餐飲/會所 |
| 項目地址 | 北京朝陽區新天地 | 項目造價 | 16.2萬 |
| 主關鍵詞 |
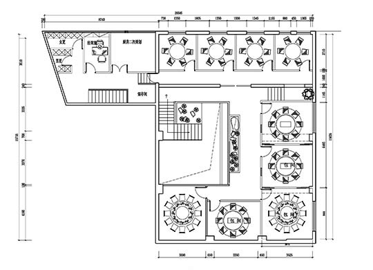
▄原建筑結構分析: 朝陽新天地餐廳裝修設計采用的是古樸中式風格,在設計師的巧妙運用下,文化磚與鏤空格柵、充滿中國元素十足的燈飾與深棕色的材質運用,以及燈光的極致渲染,將我們帶回到古色古香的時代,舒適自然。
▄設計需求: 以弧形架構做基礎,讓方正的空間增加了一份靈感,試圖讓空間里的一切元素相互融合,包括該空間的使用者們,最終呈現出讓顧客們一進店不免輕嘆一聲的作品。
▄設計風格定位: 項目面積280平方米,以新中式結合現代簡約風格為主,在普通的空間做了整體格局的大變化,把空間利用率發揮到極致,并使傳統和現代達到了很好的融合,將室內空間打造出了別樣的格調和意境。


北京鑄誠大廈辦公裝修工程
北京銀河SOHO辦公裝修工程
301醫院裝修工程
