工美大廈辦公裝修工程
項目名稱 | 工美大廈辦公裝修工程 | 行業屬性 | 金融/國企/事業機構 |
項目地址 | 長沙市開福區三一大道156號 | 項目造價 | 89.8萬 |
主關鍵詞 |

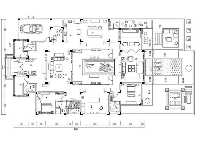
▄原建筑結構分析: 這是個獨棟的辦公室裝修,整體辦公簡潔、明亮,簡約但功能齊全的人性化設計。采用了大量明亮的吊燈和植物,以及簡單、干凈的桌椅;并且用了較多的藍色線條和形狀做裝飾,清新、文藝,藝術氣息十足。

▄設計需求: 以本色為主、盡量做到簡單不以精美的裝修吸引人,但是簡約不等于簡單;但同時要注重在于細節處的處理。簡單的設計風格和空間環境、公司文化精神的完美結合,達到自然、隨性、沒有太多裝飾卻給人留下印象深刻的效果。
▄設計風格定位: 針對客戶的需求和喜歡,選擇了現代簡約型的裝修設計風格,去契合客戶的要求。現代設計風格也是一種較常用的辦公室裝修設計風格,這一設計風格的裝飾設計能滿足辦公室的功能需求,實現現代設計風格的辦公室裝修設計特點,這個辦公室采用的是干凈的白色和低明度的青色相結合的組合方式來完成顏色分布,很有藝術感。